
MEP Engineering
730 South Vermont
730 South Vermont
730 South Vermont
F
F
F
Year
2022
Year
2022
Year
2022
Industry
Real Estate
Industry
Real Estate
Industry
Real Estate
Project Duration
6 weeks
Project Duration
6 weeks
Project Duration
6 weeks
Intro
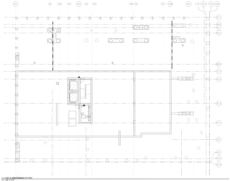
A new seven-story community with street-level retail and 80 modern residences, 730 South Vermont blends efficient urban living with robust life-safety engineering.



Objective
Our team had to deliver the complete electrical and low-voltage design, pairing Title 24 daylighting and smart controls with verified emergency egress lighting on every level. On the protection side, we had to engineer a fully sprinklered NFPA-13 system—including a 1,000 GPM fire pump and an NFPA-72 fire alarm with elevator recall, waterflow/tamper monitoring, and Area-of-Refuge communications, all coordinated to Los Angeles standards.






Challenge
The main challenge was time. Our team had to go an extra mile during the project final phase to software check, coordinate everything properly and deliver the required packages in time as per the client's expectations.



Result
The result was a precise, code-clean package that’s as resilient as it is refined.
Latest Projects

MEP Engineering
730 South Vermont
730 South Vermont
730 South Vermont
F
F
F
Year
2022
Year
2022
Year
2022
Industry
Real Estate
Industry
Real Estate
Industry
Real Estate
Project Duration
6 weeks
Project Duration
6 weeks
Project Duration
6 weeks
Intro
A new seven-story community with street-level retail and 80 modern residences, 730 South Vermont blends efficient urban living with robust life-safety engineering.



Objective
Our team had to deliver the complete electrical and low-voltage design, pairing Title 24 daylighting and smart controls with verified emergency egress lighting on every level. On the protection side, we had to engineer a fully sprinklered NFPA-13 system—including a 1,000 GPM fire pump and an NFPA-72 fire alarm with elevator recall, waterflow/tamper monitoring, and Area-of-Refuge communications, all coordinated to Los Angeles standards.






Challenge
The main challenge was time. Our team had to go an extra mile during the project final phase to software check, coordinate everything properly and deliver the required packages in time as per the client's expectations.



Result
The result was a precise, code-clean package that’s as resilient as it is refined.
Latest Projects

MEP Engineering
730 South Vermont
730 South Vermont
730 South Vermont
F
F
F
Year
2022
Year
2022
Year
2022
Industry
Real Estate
Industry
Real Estate
Industry
Real Estate
Project Duration
6 weeks
Project Duration
6 weeks
Project Duration
6 weeks
Intro
A new seven-story community with street-level retail and 80 modern residences, 730 South Vermont blends efficient urban living with robust life-safety engineering.



Objective
Our team had to deliver the complete electrical and low-voltage design, pairing Title 24 daylighting and smart controls with verified emergency egress lighting on every level. On the protection side, we had to engineer a fully sprinklered NFPA-13 system—including a 1,000 GPM fire pump and an NFPA-72 fire alarm with elevator recall, waterflow/tamper monitoring, and Area-of-Refuge communications, all coordinated to Los Angeles standards.






Challenge
The main challenge was time. Our team had to go an extra mile during the project final phase to software check, coordinate everything properly and deliver the required packages in time as per the client's expectations.



Result
The result was a precise, code-clean package that’s as resilient as it is refined.


