
Estimation & Coord.
Bayut Al Khubar Development
Bayut Al Khubar Development
Bayut Al Khubar Development
Full cost estimation for a residential compound in KSA
Full cost estimation for a residential compound in KSA
Full cost estimation for a residential compound in KSA
Year
2022
Year
2022
Year
2022
Industry
Real Estate
Industry
Real Estate
Industry
Real Estate
Project Duration
5 weeks
Project Duration
5 weeks
Project Duration
5 weeks
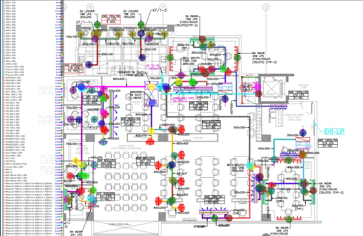
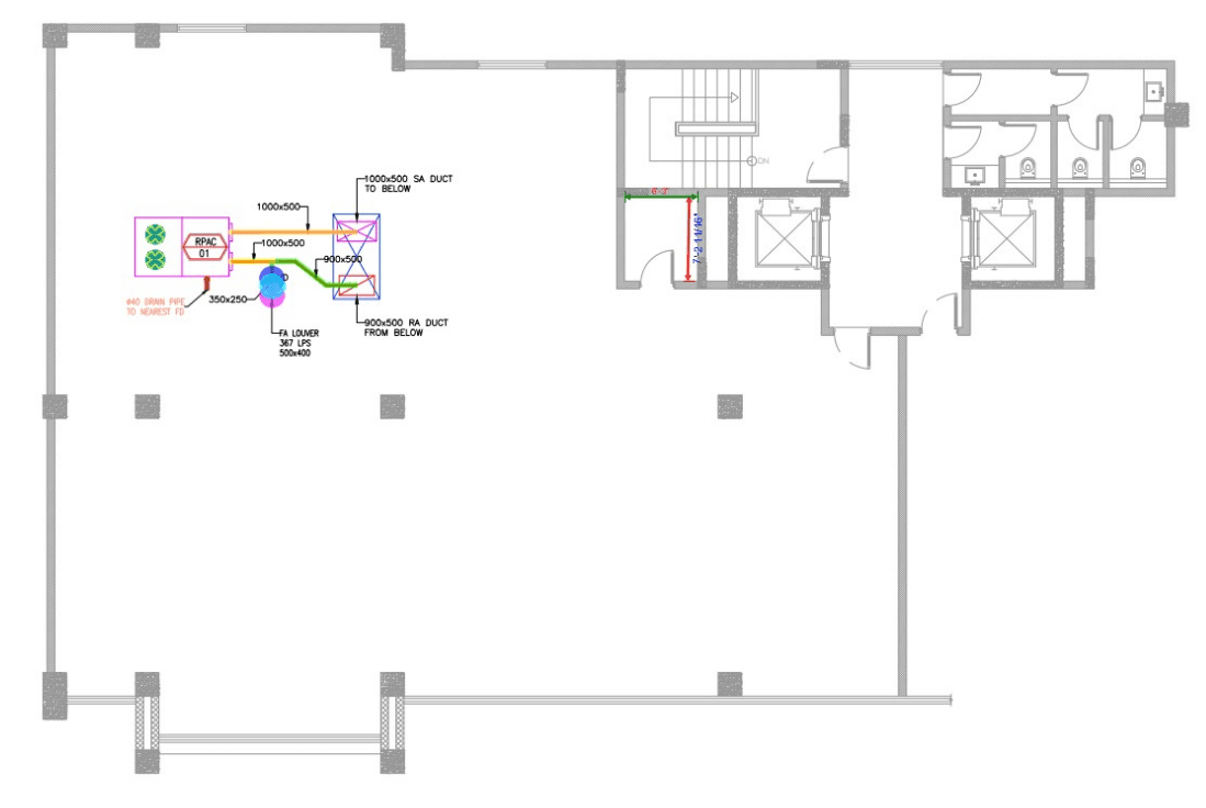
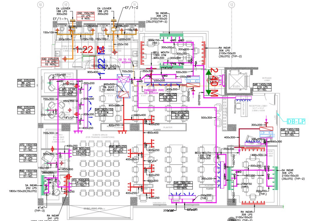
Intro
For this flagship Saudi project, our estimating team delivered a complete digital quantity take-off using PlanSwift R3 and STACK, transforming complex HVAC and architectural drawings into a clear, verifiable cost model



Objective
To prepare accurate quantity take-offs and cost estimates for Bayut Al Khobar residential compound, supporting reliable budgeting, procurement planning, and informed decision-making in line with KSA project requirements.






Challenge
Every duct, diffuser, and terminal had to be measured on screen with color-coded precision. Custom assemblies converted those measurements into ready-to-bid BOQs that aligned design intent with construction reality.



Result
A faster, more accurate estimating workflow that empowered our client to bid confidently and manage cost exposure across all building systems.
Latest Projects

Estimation & Coord.
Bayut Al Khubar Development
Bayut Al Khubar Development
Bayut Al Khubar Development
Full cost estimation for a residential compound in KSA
Full cost estimation for a residential compound in KSA
Full cost estimation for a residential compound in KSA
Year
2022
Year
2022
Year
2022
Industry
Real Estate
Industry
Real Estate
Industry
Real Estate
Project Duration
5 weeks
Project Duration
5 weeks
Project Duration
5 weeks
Intro
For this flagship Saudi project, our estimating team delivered a complete digital quantity take-off using PlanSwift R3 and STACK, transforming complex HVAC and architectural drawings into a clear, verifiable cost model



Objective
To prepare accurate quantity take-offs and cost estimates for Bayut Al Khobar residential compound, supporting reliable budgeting, procurement planning, and informed decision-making in line with KSA project requirements.






Challenge
Every duct, diffuser, and terminal had to be measured on screen with color-coded precision. Custom assemblies converted those measurements into ready-to-bid BOQs that aligned design intent with construction reality.



Result
A faster, more accurate estimating workflow that empowered our client to bid confidently and manage cost exposure across all building systems.
Latest Projects

Estimation & Coord.
Bayut Al Khubar Development
Bayut Al Khubar Development
Bayut Al Khubar Development
Full cost estimation for a residential compound in KSA
Full cost estimation for a residential compound in KSA
Full cost estimation for a residential compound in KSA
Year
2022
Year
2022
Year
2022
Industry
Real Estate
Industry
Real Estate
Industry
Real Estate
Project Duration
5 weeks
Project Duration
5 weeks
Project Duration
5 weeks
Intro
For this flagship Saudi project, our estimating team delivered a complete digital quantity take-off using PlanSwift R3 and STACK, transforming complex HVAC and architectural drawings into a clear, verifiable cost model



Objective
To prepare accurate quantity take-offs and cost estimates for Bayut Al Khobar residential compound, supporting reliable budgeting, procurement planning, and informed decision-making in line with KSA project requirements.






Challenge
Every duct, diffuser, and terminal had to be measured on screen with color-coded precision. Custom assemblies converted those measurements into ready-to-bid BOQs that aligned design intent with construction reality.



Result
A faster, more accurate estimating workflow that empowered our client to bid confidently and manage cost exposure across all building systems.


