
Facade & Glazing
JW Marriot
JW Marriot
JW Marriot
Full exterior building envelop shop drawings and compliance package
Full exterior building envelop shop drawings and compliance package
Full exterior building envelop shop drawings and compliance package
Year
2021
Year
2021
Year
2021
Client
All American Windows
Client
All American Windows
Client
All American Windows
Industry
Hospitality
Industry
Hospitality
Industry
Hospitality
Project Duration
7 months
Project Duration
7 months
Project Duration
7 months
Intro
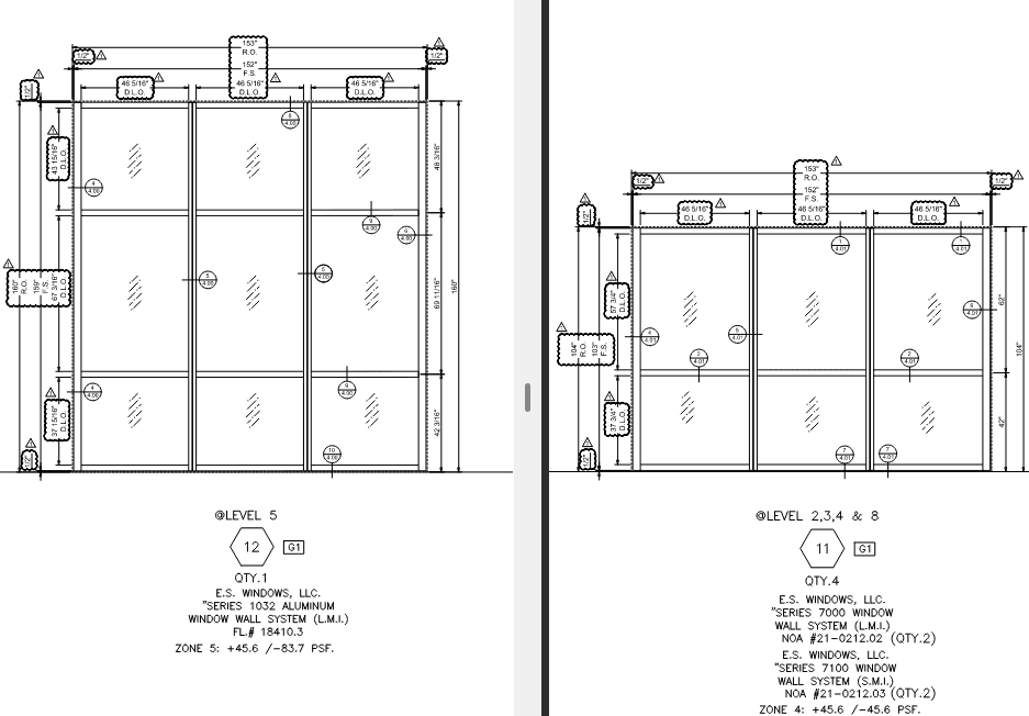
This premier beachfront resort includes both hotel rooms and a residential “Residences” component, integrating a condo-hotel model with full resort functionality. In this project, Lambda Engineering’s scope included façade and glazing system design, shop drawings, anchor and fastener detailing, structural coordination, and performance compliance for coastal exposures. We ensured that the envelope design harmonized architectural elegance with durability, particularly in high-wind and salt-air conditions.



Objective
The architectural and structural drawings were studied in details with a few initial meetings with the clients. Our objective was to optimize the cost of the whole project by minimizing the glass, aluminum and anchorage material. Our engineering team was able to achieve the target costs while keeping the structure compliant as per the code and structural wind load requirements.






Challenge
The main challenge was to provide quick turn around for various change requests to see which system shall be used to achieve both architectural aesthetics while maintaining the structural integrity.



Result
Even with 9 round of revisions in the drawings and calculations, we were still able to close the project in less than 7 months.
Latest Projects

Facade & Glazing
JW Marriot
JW Marriot
JW Marriot
Full exterior building envelop shop drawings and compliance package
Full exterior building envelop shop drawings and compliance package
Full exterior building envelop shop drawings and compliance package
Year
2021
Year
2021
Year
2021
Client
All American Windows
Client
All American Windows
Client
All American Windows
Industry
Hospitality
Industry
Hospitality
Industry
Hospitality
Project Duration
7 months
Project Duration
7 months
Project Duration
7 months
Intro
This premier beachfront resort includes both hotel rooms and a residential “Residences” component, integrating a condo-hotel model with full resort functionality. In this project, Lambda Engineering’s scope included façade and glazing system design, shop drawings, anchor and fastener detailing, structural coordination, and performance compliance for coastal exposures. We ensured that the envelope design harmonized architectural elegance with durability, particularly in high-wind and salt-air conditions.



Objective
The architectural and structural drawings were studied in details with a few initial meetings with the clients. Our objective was to optimize the cost of the whole project by minimizing the glass, aluminum and anchorage material. Our engineering team was able to achieve the target costs while keeping the structure compliant as per the code and structural wind load requirements.






Challenge
The main challenge was to provide quick turn around for various change requests to see which system shall be used to achieve both architectural aesthetics while maintaining the structural integrity.



Result
Even with 9 round of revisions in the drawings and calculations, we were still able to close the project in less than 7 months.
Latest Projects

Facade & Glazing
JW Marriot
JW Marriot
JW Marriot
Full exterior building envelop shop drawings and compliance package
Full exterior building envelop shop drawings and compliance package
Full exterior building envelop shop drawings and compliance package
Year
2021
Year
2021
Year
2021
Client
All American Windows
Client
All American Windows
Client
All American Windows
Industry
Hospitality
Industry
Hospitality
Industry
Hospitality
Project Duration
7 months
Project Duration
7 months
Project Duration
7 months
Intro
This premier beachfront resort includes both hotel rooms and a residential “Residences” component, integrating a condo-hotel model with full resort functionality. In this project, Lambda Engineering’s scope included façade and glazing system design, shop drawings, anchor and fastener detailing, structural coordination, and performance compliance for coastal exposures. We ensured that the envelope design harmonized architectural elegance with durability, particularly in high-wind and salt-air conditions.



Objective
The architectural and structural drawings were studied in details with a few initial meetings with the clients. Our objective was to optimize the cost of the whole project by minimizing the glass, aluminum and anchorage material. Our engineering team was able to achieve the target costs while keeping the structure compliant as per the code and structural wind load requirements.






Challenge
The main challenge was to provide quick turn around for various change requests to see which system shall be used to achieve both architectural aesthetics while maintaining the structural integrity.



Result
Even with 9 round of revisions in the drawings and calculations, we were still able to close the project in less than 7 months.


